Mieszkanie na sprzedaż Toruń, Rudak

3 pokoje
67.00 m²
11 328,36 zł/m2
2 piętro
EXH-MS-1586
oblicz.rate.kredytu

759 000 zł

Mieszkanie na sprzedaż
Oferta na wyłączność

szczegoly.oferty

Symbol oferty EXH-MS-1586
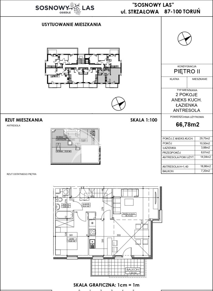
Powierzchnia 67,00 m²
Powierzchnia balkonów/tarasów 7,20 m²
Liczba pokoi 3
Rodzaj budynku blok
Technologia budowlana cegła
Standard
Piętro 2
Liczba pięter w budynku 3
Garaż garaż w budynku
Stan lokalu do wprowadzenia
Mies. czynsz admin. 720 PLN
Czynsz zimowy 720 PLN
Okna PCV
Balkon jest
Rok budowy 2016
Winda tak
Liczba wind 1
Usytuowanie narożne
Sławomir Skierski

Sławomir Skierski

Kierownik Oddziału

napisz.wiadomosc 21 ofert

opis.nieruchomosci

Rudak | Strzałowa | 3 Pokoje - Antresola | 67 m2 | Sosnowy Las

BEZ PROWIZJI DLA KUPUJĄCYCH.

Gotowe do wprowadzenia, komfortowe, dwupoziomowe mieszkanie z antresolą, w bardzo wysokim standardzie, o powierzchni użytkowej 66,78 m2 ( rzeczywistej 91,78m2), na drugim piętrze, w klatce schodowej z windą, zlokalizowane na nowoczesnym osiedlu Sosnowy Las przy ul. Strzałowej 17 na lewobrzeżu Torunia. Mieszkanie gustownie zaaranżowane i wykończone, z dużymi, pięknie otwartymi przestrzeniami.

Lokal mieszkalny składa się z dwóch poziomów.


Poziom pierwszy na drugim piętrze złożony jest z:
- salonu z aneksem kuchennym oraz wyjściem na balkon duży przeszklony balkon, wyposażony

   w dodatkowe poręcze zabezpieczające
- łazienki i WC, wyposażonej w kabinę prysznicową z deszczownicą, szafki z umywalką,
-
oddzielnej sypialni
-
przedpokoju

Antresola na drugim poziomie mieszkania złożona jest z :
- duża sypialnia z garderobą
- cześć antresoli zaaranżowana na miejsce do pracy biurowej lub zdalnej.

Mieszkanie nowocześnie wykończone, liczne zabudowy i meble na wymiar, wyposażenie kuchni, łazienki z toaletą, podwieszane sufity z oświetleniem i podświetleniem na ścianach częściowo zdobionych lamelami.  W oknach zamontowane rolety zewnętrzne sterowane pilotem

Znaczna część skosów w antresoli do wysokości 1,4 m, nie obejmująca powierzchni użytkowej, wykorzystana na szafki oraz  garderobę. Mieszkanie utrzymane w doskonałej kondycji, bardzo zadbane i czyste. W kuchni zainstalowana jest tzw. siła elektryczna, pozostaje zatem możliwość wymiany kuchenki gazowej (tania eksploatacja) na kuchenkę indukcyjną lub ceramiczną.

Lokal  mieszkalny nie posiada żadnych obciążeń, czy hipoteki, gotowy do zamieszkania, nie wymaga najmniejszych nakładów finansowych, wyposażony i  w dużej mierze umeblowany.

Miejsce parkingowe w hali garażowej dostępne za dodatkową opłatą 40000 złotych.

 W okolicach budynku dostępne też wspólne, naziemne miejsca parkingowe.

Budynek wyposażony w wózkownię i rowerownię

Cena mieszkania do negocjacji.
Miesięczny czynsz administracyjny wynosi 720 .

Przekazanie mieszkania do ustalenia (około 3 miesiące)

Osiedle zamknięte ze szlabanami, z licznymi ścieżkami dla pieszych i drogami wewnętrznymi. Piękne trawniki oraz liczne nasadzenia zieleni i krzewów.
Osiedle monitorowane, posiadające tzw. Strefę rekreacyjną, m.in wiata grillowa - miejsce służące integracji i wspólnie spędzonym czasem i rozrywką.
Dodatkowo place zabaw dla dzieci, w pobliżu boisko do piłki i kort tenisowy, a także siłownia bezpośrednio przy osiedlu.

Gorąco polecam.

W pobliżu nowa szkoła podstawowa, znacząco rozwijająca się infrastruktura, sklepy spożywcze: Biedronka, Lidl, Torimpex, Piekuś, Action i branżowe, siłownia, punkty usługowo handlowe, stacje paliw.
Dobra komunikacja miejska, a przejazd za Wisłę, zarówno mostem Piłsudskiego jak i Zawadzkiej zajmuje zaledwie 12 minut, a w godzinach szczytu, kilka minut dłużej.

W celu uzyskania dodatkowych informacji, zapraszam do kontaktu oraz na prezentację nieruchomości w dogodnym terminie, po wcześniejszym umówieniu wizyty.

Nasi doradcy finansowi, w ramach kompleksowej obsługi klienta, bezpłatnie i profesjonalnie przygotują dla Państwa atrakcyjną ofertę na zakup mieszkania ze środków pozyskanych z kredytu hipotecznego.

Usługa pośrednictwa jest płatna.

ZAPRASZAM

lokalizacja.nieruchomosci

kalkulatory

kalkulator.kredytowy

wysokosc.raty

PLN
%

kalkulator.kosztow

Podatek od czynności cywilno-prawnych

taksa.notarialna

wniosek.wkw

vat.od.prowizji

vat.od.taksy

prowizja.agencji

wpisy.aktu

razem

kalkulator.info

PLN
PLN
PLN
PLN
PLN
PLN
%
PLN

Kierownik Oddziału

Proszę wprowadzić poprawne imię i nazwisko
Proszę wprowadzić poprawny numer telefonu
Proszę wprowadzić poprawny adres e-mail
zaznacz.pole
rozwiaz.rownanie:
25 6
niepoprawny.wynik